近日
天津市胸科医院疑难病症诊治能力提升工程暨
天津市胸科医院和平院区改扩建工程
开工!
预计2021年底竣工
2022年投入使用

胸科医院和平院区改扩建工程效果图
天津市胸科医院是一家历史悠久,集医疗、教学、科研、康复和预防为一体的现代化三级甲等专科医院。2014年1月,按照天津市卫生资源布局重头调整的要求迁至津南区,而原址改造重建一直是天津百姓的共同盼望。
2019年12月31日,天津市胸科医院疑难病症诊治能力提升工程暨天津市胸科医院和平院区改扩建工程正式开工。

和平院区建成后啥样?

胸科医院和平院区是国家发改委疑难病症诊治能力提升工程项目,结合医院坐落于市中心位置,将更加突出胸科医院救急、救重的专科特色,从而提升我市心肺疑难病症的诊治水平,进一步加强我市心血管病的防治体系建设。

2018年2月,天津市胸科医院入选国家发改委和国家卫生计生委疑难病症诊治能力提升工程项目储备库。2018年7月,天津市胸科医院和平院区改建工程通过市发改委立项审批。
该项目建筑面积为58931.4平方米,规划床位400张,预计2021年底竣工,2022年投入使用。建成后科室设置布局将以疑难重症为主,发挥学科优势,将重点放在急危、重难疾病的诊疗上,促进心血管疾病防治的“端口前移”,使医院功能更加完善、服务更加优质、定位更加合理,进一步提高我市心血管疑难病症诊治水平。

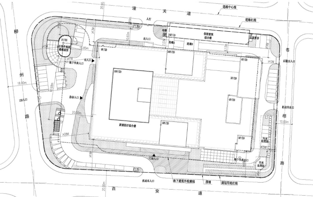
近日,天津市胸科医院疑难病症诊治能力提升工程建筑设计方案总平面图在市规划和自然资源局网站上进行了公示。

总平面图显示,该工程四至范围是:北至潼关道,南至西安道,西至柳州路,东到苍梧路。建成后,院内设门诊和急诊,新建医疗综合楼地上10层地下2层;预留机动车泊位265个,并预留充电设施机动车停车位。门诊入口和机动车入口设在西安道,机动车出口设在苍梧路,120和急诊入口设于柳州路一侧。

胸科医院和平院区门诊楼效果图

胸科医院和平院区急诊楼效果图

胸科医院和平院区住院楼效果图
这些医院老院区也将保留
日前,记者从市卫生健康委了解到,天津第一中心医院、天津市中心妇产科医院等老院区都将保留。
天津市第一中心医院

侯台新址力争2020年底投用
复康路老院区继续保留

天津市第一中心医院新址位于西青区侯台风景区东南侧保山西道2号,该工程已于2019年9月20日封顶,力争在2020年底竣工投入使用。
第一中心医院新院区是全国单体最大的公立医院。新院区通过模块化诊区设计、智慧医疗理念的应用,能够为患者提供高效便捷的就医体验和温馨舒适的就医环境。新院区设计地下1-2层为停车场,可容纳车辆2000辆,在地上一层预留与地铁接驳的出口。16层的综合楼屋顶,设置直升机停机坪,可满足特殊情况下直升机运送病人的需要。

第一中心新院竣工后,复康路的老院区将继续保留,并将按照急、老、慢、小的原则进行科学布局安排。
天津市中心妇产科医院
原址改扩建工程预计2021年底交付使用

天津市中心妇产科医院原址改扩建工程已于2019年6月底动工,目前正在进行桩基施工,预计2021年底竣工交付使用。项目建成后,中心妇产科医院将实现“一院双址”格局。
和平营口道院区称为中心妇产东院区,在学科设置方面,主要侧重于生殖医学科(辅助生殖技术治疗不孕不育)、普通产科(国际化陪产产房)、配备新生儿科,麻醉科,超声科等,同时建设天津市人类早期发育与生殖调控重点实验室。

南开院区为总院区,设置妇产科及全部亚专科、新生儿科、乳腺科、麻醉科、影像诊断科、病理科以及其他辅助学科,并建设重症医学科以满足老龄妇科疾病及肿瘤手术后康复辅助。同时为病理产科和急危重症产妇的救治做好支撑,建设日间妇科手术中心以解决小手术门诊管理快速康复。使新、老院区在学科配置上优势互补,医教研协同发展。
·END·
编辑倪坦
综合 天津市规划和自然资源局网站 天津广播
天气提示:今天本市天气状况为晴间多云,最高气温4℃,最低气温-3,微风。