一、墙柱钢筋质量存在问题
针对现场砼浇捣完毕后,对墙柱的竖向钢筋钢筋偏位质量问题产生原因进行分析,得出钢筋偏位的原因主要为测量偏差、,模板位移、无定位筋、没有设“梯子筋”等措施不到位及浇捣砼时钢筋受冲击。

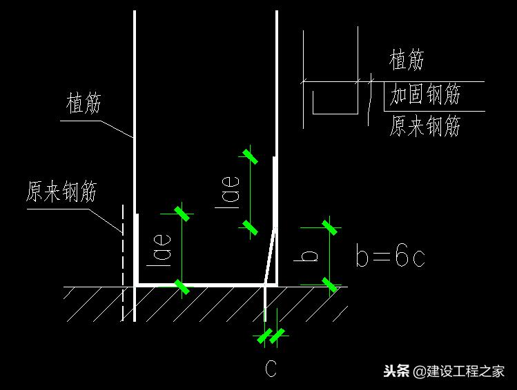
二、处理方案
1. 针对一侧位移,(20mm内)的采用加固的情势;

2.两侧发生位移的一侧采用植筋的方法,另一侧采用加固的方法;

3.针对柱钢筋向外位移30~50采取剔槽弯曲同植筋绑扎搭接的方法

4.针对两侧位移的钢筋一侧采取结构植筋的方法,指定有相应资质的植筋单位进行施工,钢筋规格采用同规格的HRB335级钢筋。
5.根据JGJ145《混凝土后锚固技术规程》,之规定植筋深度hefmin/d,≥21d。
6..化学植筋所用锚固胶的锚固性能通过专门的试验确定,对获准使用的锚固胶,除说明书规定可以掺入定量的掺和剂(填料)外,现场施工中不宜随意增加掺料。
7. 按JGJ145规定:同规格、同型号,基本相同部位的植筋组成一个检验批。抽样数量按每批植筋总数的1‰计算,且不小于3根。采取现场非破损拉拔试验。
8. 化学植筋置入锚孔后,在固化完成前,应按照厂家所提供的养生条件进行固化养生,固化期间禁止扰动。

钢筋移位了,工程做成这样,施工员太不认真了。钢筋工的责任,砼浇捣前要在结构标高上再加一两个箍,稍微有点经验的钢筋带班都知道。施工员有提醒,检查义务 。
打混凝土时钢筋跑位了,这个做法是做常见的,但最好不要让监理发现。其实钢筋跑及CM都小事,关键是你浇混凝土的时候连下面梁的上部钢筋都未盖到,这事可大可小,是属于质量事故!
三、钢筋防偏位保障措施
为了保证墙、柱竖向钢筋在砼施工过程中不再发生偏位现象,其墙柱截面符合设计要求,此工程以后在施工过程中,采取如下措施:
1、墙柱钢筋的固定采用定位箍焊牢定位(详见后附图)。
2、加强技术交底,提高砼操作工人质量意识,告知他们砼振动棒的插入点是在柱或墙身正中位,并加强在砼浇筑过程中的监督和巡查,同时增加钢筋纠偏值班人员人。
