
项目地址:深圳·壹城中心
项目面积:127㎡|五室两厅
设计风格:现代
设计&落地管控:设美家
这是一套位于深圳壹城中心的房子,房产证面积127㎡,全屋标准卧室有五间,目前屋主夫妻俩居住,他们对未来的规划非常明确,所以希望设计师在规划空间用途时立足当下也能兼顾未来。
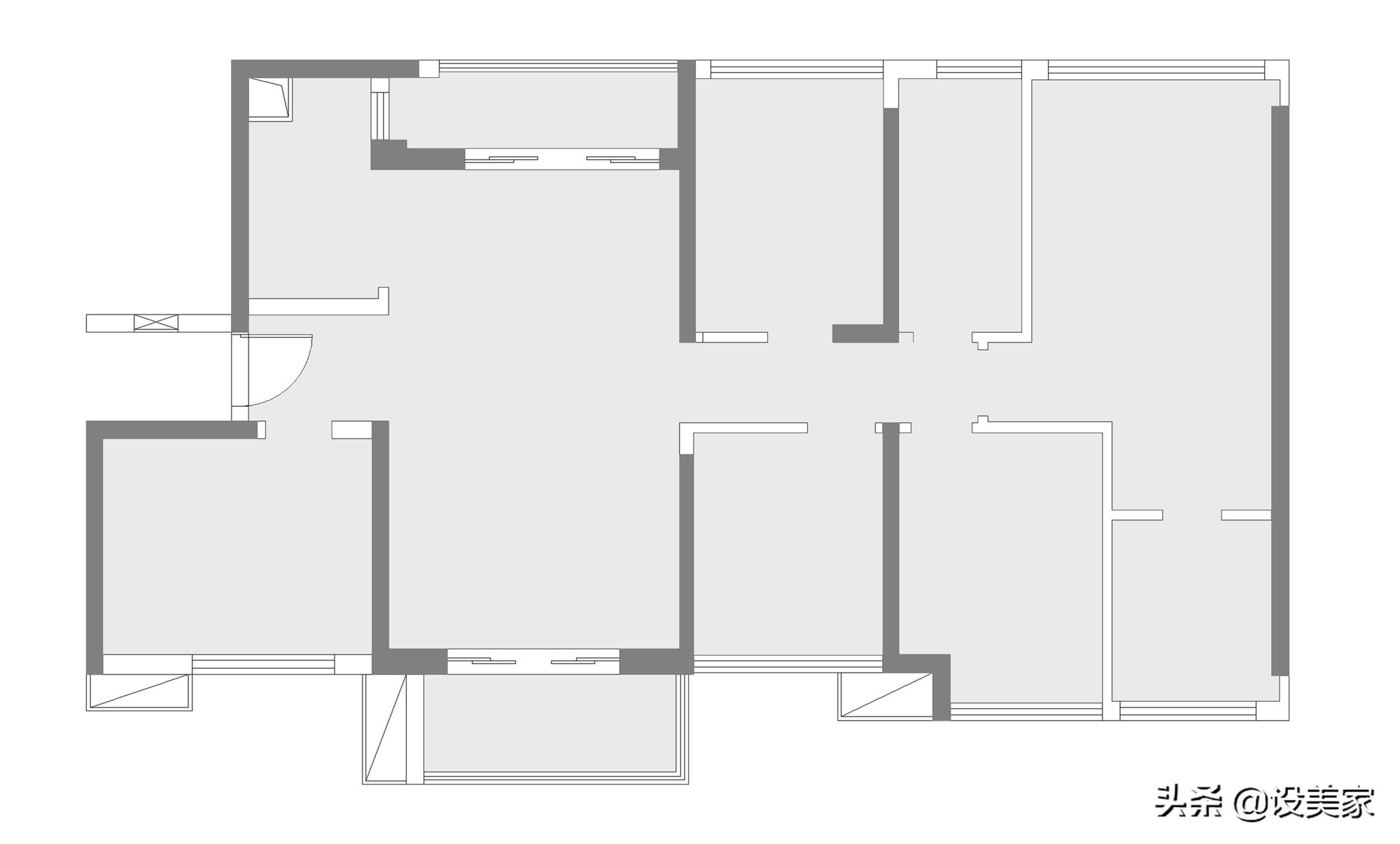
房子户型方正,采光通风都很好,户型上最大的问题有两个,设计师也给出了针对性的解决方法:

原始结构图
问题A
原厨房采光不够
解决方案:重头考虑生活阳台、餐厅、厨房三者的关系,把生活阳台扩进屋内,来扩大餐厅使用面积,同时厨房门也改做通透的玻璃推拉门,通风采光更好
问题B
主卧门与入户大门正对
解决方案:把书房并入主卧做整体设计,改从书房进主卧,主卧成为了多功能的大套间

改造后布局
客 餐 厅
进门后有一个玄关作为室内外的过渡地带,地面瓷砖和客餐厅的木纹砖在色彩和质感上都能明显区分开来。另外定制的木色柜子也承担了玄关的收纳功能。

客餐厅主空间是简约安静的灰白基调,天花吊了简单的平顶,地面通铺了木纹砖,自然朴实,相比实木地板也更好打理。

客 厅
客厅装饰以简约为主,没有做电视背景墙,反而在沙发背景一面墙花了小小心思,以12厘夹板打底面贴石膏板,然后刷艺术涂料,周边还暗藏了成品灯条设计。
整个空间的色彩不多,黑白灰加上椅子、边几局部点缀的暖咖色,也不会感觉到单调冷清。


餐 厅
餐厅最引入注目的是满目的阳光,原本的阳台被封进室内,选择了可以调节光线的百叶帘,整个空间的采光特别好。

当然原本阳台区域的功能属性也被保留了,两头嵌入摆放了洗衣机以及冰箱。

Square roots橡木铁艺复古餐桌椅搭配简约透明的玻璃吊灯,一重一轻,十分和谐。
这个吊灯商家配送的是暖色光源,如果不喜欢也可以在灯具到后自己购买相同螺口的暖白色光源换上。

餐厅另一边是半高的餐边柜,上半部分是则是一组简约挂画,加之充满生机的散尾葵,整个空间在阳光的装饰下变得幸福感满满。


主 卧
主卧窗边有一方不能拆改的横梁,显得层高有些低,为了避免氛围压抑,色调上我们用了白色+木色,让整个空间更显干净通透。


床头做了浅咖色的硬包,搭配无靠背的成品床,简洁又省空间。


拉开长虹玻璃推拉门,是主卧内的衣帽间,两排到顶的白色衣柜靠墙,中间则是足够宽敞的活动空间,另一头的推拉门则连接着主卫,这样也避免了主卫门正对床头。



书 房
书房位于主卧内,主要用于业主夫妻俩办公、阅读,因此在窗边配了双人书桌,左边的墙面用软木板框出一片区域,避免大白墙的单调乏味。


小 孩 房
小孩房目前是一间空房,家具饰品都留给屋主夫妻俩慢慢准备,夫妻俩希望亲手装扮出未来孩子的居所。

有阳光的家,可以很慵懒
