
交底内容:
一、材料要求
1、600*200*200mm蒸压加气快、240*190*390mm陶粒混凝土、蒸压灰砂砖(240×115×53mm)、水泥(P.O32.5)、中砂、碎石。
2、M5水泥砂浆:水泥P.O32.5;中砂:含泥量不大于5%,使用前过孔径5mm的筛子。
3、墙体拉结筋φ6,构造柱、过梁钢筋Ф12,Ф14、Ф16,箍筋φ6、φ8。砼板带钢筋φ8。
4、植筋结构胶。

二、主要机具
大铲、刨锛、瓦刀、托线板、线坠、卷尺、铁水平尺、皮数杆、小水桶、灰槽、笤帚等
三、作业条件
1、主体结构施工完毕,已通过四方验收。
2、弹出的轴线、墙线、门窗洞口线经复合无误后办完预检手续。
3、皮数杆制作完毕,办完预检。
4、蒸压加气快在砌筑前2d将砌块浇水润湿,灰砂砖在砌筑前1d将砌块浇水润湿,一般将水浸入砖内15mm为宜。
5、砂浆采用M5水泥砂浆,其配比已由试验室配出比例如下,水泥:砂=1:5.66 或商品砂浆。
6、大面积施工前先做样板墙,经项目工程、技术、质检及监理验收合格后方可进行大面积施工。
四.操作工艺
1、砌筑的工艺流程:
设置构造柱、门套柱、过梁(圈梁)、砼板带拉筋、拉结筋→基层处理 → 浇水润湿 → 基底找平 → 测量放线→排砖撂底 → 立皮数杆 →排列砌块→拉线 →墙底砌三皮灰砂砖→加气块砌筑→验收 →水、电配合进行管线连接。
1.1砌筑前根据砌筑墙体尺寸加工制作构造柱、门套柱、过梁拉筋、拉结筋;将楼面清理干净,洒水润湿。施工构造柱、门套柱、过梁拉筋、拉结筋时使用建筑结构胶及固化剂进行植筋:
1.1.1植筋工艺流程:清理→弹线→探筋→定位→选择机具→设备安装→钻孔→清理孔洞→灌胶→植筋→固化。

1.1.2施工要点
1.1.2.1混凝土结合面清理:将需要植筋的混凝土原结构表面清理干净。
1.1.2.2探筋:用钢筋探测器确定原结构钢筋的位置。
1.1.2.3定位:对需要植筋的地方弹线定位,并标明所植钢筋直径、深度,按已定好的孔位进行机械钻孔。
1.1.2.4钻机钻孔:植筋锚固长度根据结构胶的种类、钢筋直径的不同而不同,根据设计要求,不同规格钢筋的植筋的锚固长度及孔径如下表所示。钻孔深度经施工队自检合格并经项目技术、质检验收通过后报请甲方、监理进行检查。

1.1.2.5孔壁表面处理:对验完的孔用刷子刷出灰尘并用高压风机将孔内灰渣清理干净,吹出灰尘。然后用*酮丙**清洗孔壁。
1.1.2.6灌胶:用注射器从底部向上注胶。
1.1.2.7植筋:将结构胶灌入孔内,注入深度一般为孔深的2/3,然后将钢筋插入孔内,按一定方向旋转钢筋十几圈插入,使钢筋与结构胶、混凝土孔壁粘接密实。待结构胶完全固化将进行钢筋单面焊接10d,清理干净经项目技术、质检验收合格后报请甲方、监理进行检查,经甲方、监理认可后进行下道工序施工。
1.1.2.8固化:植入钢筋后留有足够的时间让结构胶固化,待结构胶完全固化后方可进行下道工序施工。
1.1.2.9质量检验与试验:结构胶:有出厂合格证、检测报告,符合设计要求,适合现场温度和湿度。

1.2根据最下皮砖标高拉通线检查,如水平砖缝厚度超过20mm用C15细石砼找平,不得用水泥砂浆找平。
1.3根据墙面尺寸,排砖撂底,要求组砌合理,便于操作。
1.4皮数杆制作:用30*40mm木料制作,皮数杆上要注明砖高、缝高、门窗洞口、预埋块、拉结筋、过梁的尺寸、标高。皮数杆间距不大于15m,转角处及交接处均应设立。皮数杆要垂直、牢固、标高一致。
2、砌筑要求
2.1加气块砌块施工时,楼面和屋面堆载不得超过楼板的允许荷载:3.5KN/m²,上人屋面为2.0 KN/m²,非上人屋面为0.5KN/m²。施工层进料口后浇带楼板处,采取加碗扣架临时回顶支撑牢固。
2.2砌筑用“反砌法”砌筑,从转角或定位处开始向一侧进行。上下皮砌块要求搭接长度不小于150mm,上下皮竖缝相互错开1/3砌块长。砌块底面朝上反砌于墙上。
2.3后砌墙与砼墙在同一平面时,砌墙让出20mm抹灰面。
2.4砌块水平灰缝和竖向灰缝厚度最小为8mm,最大不超过12mm。
2.5填充墙先砌至圈梁处,待拉梁砼浇筑完成后至少间隔7d,再将其上部补砌挤紧。填充墙顶部用灰砂砖斜砌(与竖向成60度角实并与顶板或梁顶紧),见后附图。
2.6 砌筑前,将构造柱甩筋扶正,除锈清理干净。用建筑结构胶加固化剂固定拉结筋,拉筋间距为距墙柱下端(楼板)第一块砌块上处开始设置,拉结筋间距500mm。拉结钢筋沿墙长通长设置。
2.7构造柱、门套柱、拉梁、过梁主筋保护层均为25mm。砌筑中Ⅰ级圆筋做180度弯钩,平直段长度为5d。
2.8墙体每层最底下三皮砖采用灰砂砖,三皮以上使用加气块砌块,斜砌顶砖采用灰砂砖。

2.9水平灰缝和竖向灰缝厚度控制在10mm~12mm之间,要求水平灰缝砂浆饱满度不小于80%,竖向灰缝砂浆饱满度不小于80%,灰缝横平竖直,不得出现瞎缝,透明缝。
2.10为保证墙面立缝垂直,不游丁走缝,当砌筑一步架高时每隔2m水平间距在立棱位置弹两道垂直线,在操作中认真检查,发现偏差随时纠正,严禁事后砸墙。
2.11砌块墙中不够整砖部分,用无齿锯制作非整砖,不得用砍凿的方法将砖打断。
2.12开槽必须顺直,不得歪斜。如下图所示:

2.13墙体转角处和纵横墙交接处同时砌筑不得留斜岔。每天砌筑高度不得大于1.8m。
2.14 在砌筑砂浆终凝前后的时间,将灰缝刮平(勾缝)。
2.15 砂浆拌制:
2.15.1采用重量比,计量精度:水泥±2%,砂±5%。
2.15.2采用机械拌料,投料顺序:砂 → 水泥 → 水,搅拌时间不小于1.5分钟。
2.15.3砂浆随伴随用,拌好的砂浆要在3小时内用完,严禁使用搅拌完时间过长及隔夜砂浆。
五、砌筑主要构造和施工方法
1、在墙体转角、T字墙及墙长大于4m的墙中部留设构造柱,屋顶面女儿墙构造柱间距为3.6m。
2、构造柱的尺寸为150*250mm(150mm厚墙体)和250×250mm(250mm厚墙体),并砌成马牙槎的情势,马牙槎一进一退。从每层楼面开始,马牙槎先退后进。构造柱配筋4Ф12,箍筋Ф6@150。主筋
在结构板面上起与甩筋搭接绑扎(搭接长度570mm),顶部与顶板之间使用建筑结构胶及固化剂与上部顶板、梁固定。构造柱主筋采用植筋的方法固定,主筋搭接长度:Ф12搭接570mm如下图:(主筋保护层25mm)。


3、砌筑前,首先使用结构胶把拉结钢筋固定在框架柱或剪力墙上,然后采用搭接设置通常的拉结筋,在转角处拉结筋穿过构造柱部位与柱筋绑扎牢固。拉筋间距要求:距结构板第一块砌块上第一道,间距500mm。拉结钢筋沿墙长通常设置。

4、墙转角处、“T”字形墙、“十”字形墙交接处拉结钢筋构造图如下所示(拉结筋沿墙长通长设置):

5、所有隔墙门窗洞边设置构造柱(三层以上卫生间≤900mm时门洞口设置150×150mm砼门抱框,配筋为2Φ12,S形拉筋为φ6@200),构造柱做法示意图如下图所示:

6、三层以上入户门部位门窗框砌筑如下图所示(当洞口宽度≤1500mm时,构造柱伸至洞顶过梁内,当洞口宽度>1500mm时,构造柱伸至梁、板底并与梁、板底固定牢固):

7、户内门的砌筑构造图:


8、钢筋砼构造柱施工顺序:绑扎钢筋、砌隔墙、支模板、浇筑砼、拆模、养护。
9、构造柱钢筋可绑扎搭接,箍筋间距为200mm,钢筋砼构造柱钢筋保护层为25mm。
10、洞口(包括墙上水电预留洞口)过梁、圈梁:建筑1000mm线向上返1100mm(1700mm)处设置过梁与圈梁(根据图纸洞口高度而定),过梁、圈梁截面尺寸配筋如下图所示。门洞顶过梁与圈梁交接重叠处,过梁与圈梁截面尺寸及配筋以较大者为准,门洞两侧加设钢筋混凝土门套;

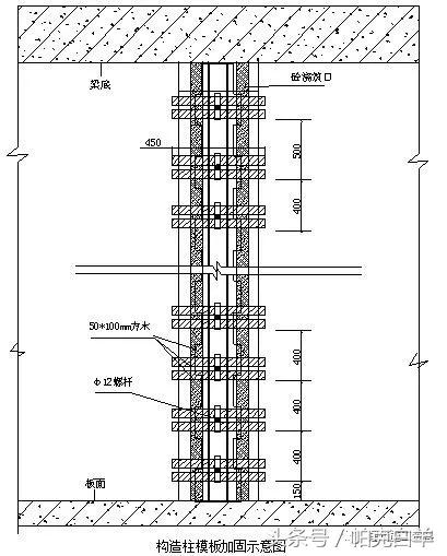
11 、构造柱(门窗框柱)模板采用竹胶板方木定型加工,背肋50*100mm方木间距200,采用50*100方木加螺杆连接固定。模板与墙面粘贴20mm宽密封缝条,模板与墙体贴紧严密,支撑牢固,下页如图所示。

12、构造柱为C20细石砼,在浇筑砼前,必须将砌块墙和模板浇水润湿,并将模板内的砂浆残块、砖渣等杂物清理干净。浇筑砼宜分段进行,每段高度不大2m,使用30振捣棒浇筑构造柱的砼,同时从模板外侧敲打模板,保证砼浇筑密实,其坍落度为90-110mm,到顶部时,使用干硬性砼人工捣实,表面压光。
13、地下一层、首层、二层因墙体高度超过4m,有门窗洞口在门窗洞口上方设置一道墙厚×240mm的圈梁,无门窗口处在墙高度方向中间设置一道墙厚×240mm的圈梁。圈梁配上下个两根螺纹12钢筋,箍筋为圆6@200。门洞上口处圈梁截面高度及配筋按过梁要求施工,如下图所示:

三层及三层以上内隔墙不设置圈梁,内隔墙门窗洞口设置过梁,过梁两侧伸出门窗边线300mm即可(同一位置隔墙门窗洞口相邻较近时,过梁拉通)。内隔墙窗台下设置墙厚×80mm砼板带,板带配筋为2φ8,拉勾为φ6@200
14、圈梁以上部分砌筑如下图:圈梁砼浇筑完成后至少间隔7d,再将上部补砌挤紧(新规范为14天)。

15、女儿墙压顶梁做法如下图所示:

六、质量标准
1、主控项目:
砖、砌块和砌筑砂浆的强度等级符合设计要求。
2、一般项目:
2.1蒸压加气砌块不得与其他块材混砌。
2.2蒸压加气砌块的砂浆饱满度:水平灰缝和竖向灰缝厚度控制在10mm,不能大于12mm,要求水平灰缝砂浆饱满度不小于90%,竖向灰缝砂浆饱满度不小于80%,灰缝横平竖直。
2.3 蒸压加气砌块留置的拉结筋的位置与块体皮数相符合。拉结筋置于灰缝中,埋置长度符合设计要求,竖向位置偏差不超过一皮高度。
2.4 墙面垂直平整,组砌方法正确。
2.5砌块表面方正完整,无损坏、开裂现象;灰缝饱满,无松动、脱落现象。
3允许偏差:(每层垂直度应为5)

4灰缝要求:水平灰、竖向灰缝饱满度≧80%,不得有透明缝,瞎缝、假缝。
七、成品保护措施
1、暖卫、电气管线及预埋件应关注保护,防止碰撞损坏。
2、墙体上的管线槽孔以预留 为主,因漏埋或未预留时,应弹线用云石机切割,严禁乱凿墙体。
3、砌筑施工应及时清除落地砂浆,做到活完场清。不得直接在结构面拌合砂浆及砼。
4、砌筑墙体,严禁在墙体上留脚手眼,不许在砌块上放脚手架,防止发生事故。
5、拆除施工架子时关注墙体及门窗口角。
6、手推车应平稳行驶,防止碰撞墙体。
7、拌合砂浆及砼必须用专门的器具和量斗计量,严格控制材料用量。
八、文明、安全措施
1、墙身高度超过1.2m以上时,搭设钢管脚手架;高度超过4.0m时采用里脚手架必须支设安全网。
2、脚手架上堆砌块高度不超过3皮侧砖,同一块脚手板上的操作人员不超过2人。
3、不准站在墙顶上做划线、刮缝及清扫墙面或检查大角垂直度等工作。
4、不准用不稳固的工具或物体在脚手板面上垫高作业。
5、砍砖及砌块时面向内打,关注碎砖伤人。
6、在同一垂直面内上下交叉作业时,关注设置安全隔板,下方操作人员必须戴安全帽。
九、环保措施
1、施工必须做到活完场清,及时收集落地灰,过筛后重头利用。
2、清理后的碎砖块、砌块等垃圾用水泥袋装好,运到垃圾分离处(属无毒的不可回收废弃物)。
3、砂浆搅拌机械进入现场前,由景红星对进入现场的砂浆搅拌机械进行全面检查和维护保养,以保证机况良好,符合如下要求:
3.1固定连接紧固, 无松动, 松扣现象;
3.2机械运转平衡, 无异响;
3.3各运转机构有良好的密封性,无漏电、漏水现象。
4、机械修理工经常检查砂浆搅拌机械的运行情况,发现问题及时进行维护、保养,以保证施工机械处于良好运行态势。在进行现场维修、保养时,产生的废油由维修人员回收,集中进行处理,禁止将污物倒入现场。
5、搅拌现场经常洒水湿润,在搬运水泥时,轻拿轻放。搅拌现场必须每天进行清理,垃圾放在指定地点。废水经沉淀后方可排入市政管网。
6、原料运输车辆不得超量装载,砂子最高点不得超过槽帮上缘,两侧边缘低于槽帮上缘10cm至20cm。水泥在运输过程中采取措施避免扬尘。
7、各种运输车辆进入驶出现场禁止连续三次鸣笛,并及时冲洗车轮。
8、各种材料必须妥善保管,防止雨淋,不得随意遗洒和浪费材料,严格按交底及配比施工,不得随意更改。
9、各种材料进场及接受前必须检查材料质量及数量,不合格的材料不得使用。
10、砂、石料必须堆放在专用料池内(料池用灰砂砖砌块砌筑、抹灰)且堆放成方成堆。

《更多精彩文章请关注头条号:帕克白羊》
文章来源 网络,如有侵权请联系删除