
瓷片与瓷砖材料特性不同,倘若工人师傅采用瓷砖的铺贴工艺要求铺贴瓷片,或者不关注细节施工要求,就容易出现质量问题。
因为“瓷片”和“瓷砖”工艺流程只在细节处理上有所不同,所以本期文章,我们主要和你介绍“瓷片与瓷砖不同之处,需要关注的铺贴质量问题分析,不做工艺细致讲解”
之后的第二部分以瓷砖的铺贴排版及施工要求展开:
01瓷片和瓷砖铺贴的不同之处
瓷片不属于瓷,而属于陶瓷砖,由胚体、底釉层、和面釉层3部分组成。我们可以理解为瓷片是“表面有瓷面的薄层贴片”和瓷砖的烧制工艺、薄厚度、光泽度系数都不同。

瓷片铺贴关注点1:需要铺贴的墙体,在铺贴前一天应该淋透(吸饱水),然后用水泥砂浆混合找平,找平层完全干爽后再进行铺贴。

瓷片铺贴关注点2:瓷片在铺贴前,应浸透水再铺贴,如果浸水处理不到位会直接影响墙面瓷片的粘贴效果。(铺贴瓷片置于清水中浸泡1小时左右,至不冒泡为止,随后取出,抹干水渍)

瓷片铺贴关注点3:砖背面均匀抹上1:2 左右水泥沙浆(水泥用合格的普通<325#硅酸盐水泥)混合后的标号在200#以下(若混合后沙浆标号过高,其后期应力会使釉面砖的釉面产生迫裂,易造成施工质量事故)
沙浆厚度5mm-6mm为宜,铺贴大规格瓷片时适当加厚, 随即将砖贴上, 用木锤或胶锤轻轻拍牢,避免空鼓,并随时用直尺或水平尺找平。

上面关于瓷片的铺贴关注要点就讲到这里,工地上采用胶泥混合水泥砂浆做法这里不推荐,一个是化学粘结,一个是物理粘结,容易产生铺贴质量问题。
02瓷砖铺贴深化
根据户型设计方案设置相应的铺贴参照点
设置主控线
明确铺贴控制尺寸
规划铺贴顺序

瓷砖深化排版△

餐厅地面铺贴顺序△

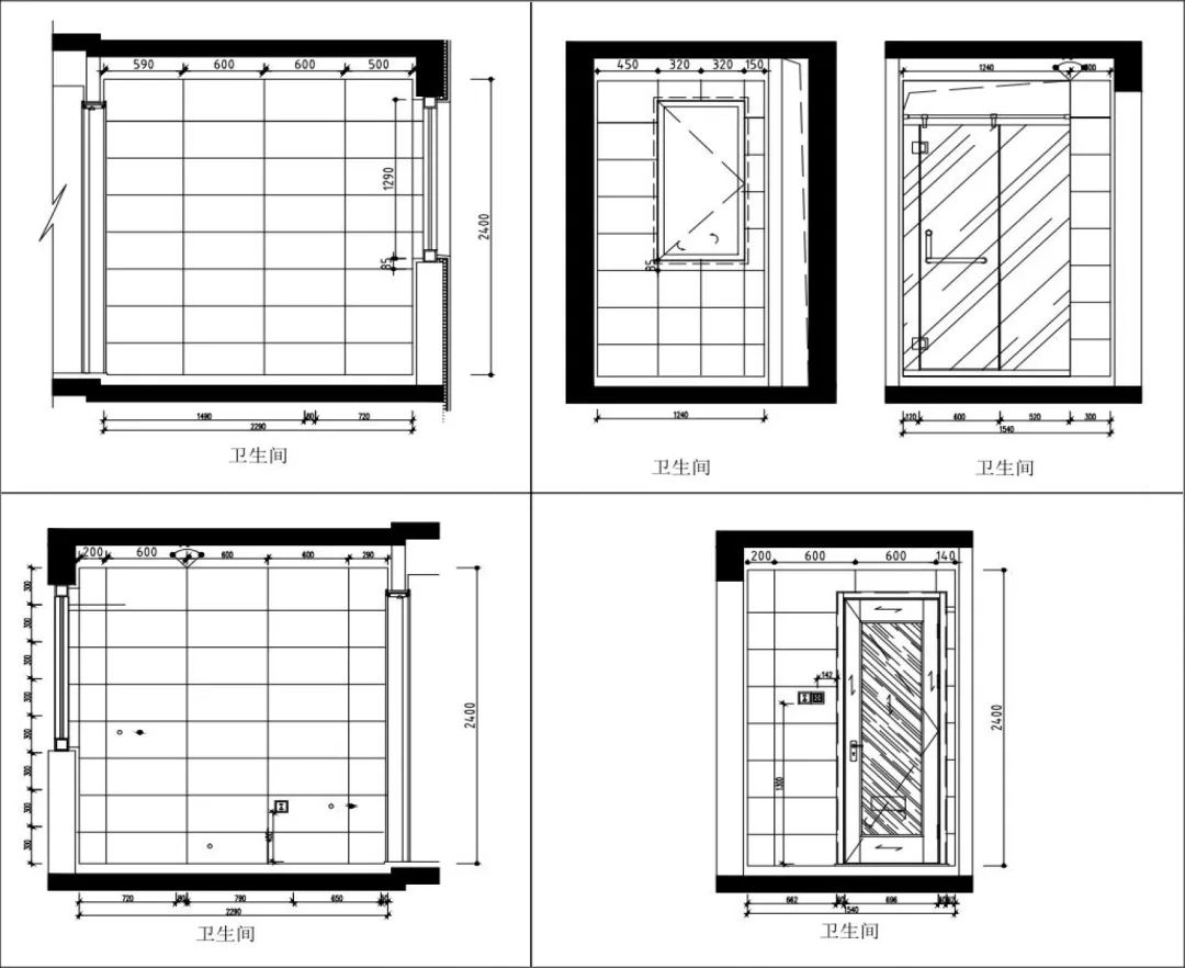
卫生间墙面排版△

瓷砖深化排版下单图△

窗台板、门槛石等下单图△
03瓷砖的技术交底
1.施工条件
卫生间、厨房、电梯前室及首层大堂墙面基层必须为水泥砂浆,严禁使用混合砂浆,严禁基层空鼓、起皮、脱落和过度光滑。

卫生间单组份聚氨酯防水涂料施工完成、沉箱回填完成;水泥基刚性防水施工完成;厨房烟道、卫生间风道安装并挂网批荡完成且吊洞防水封堵完成。
给排水管道预埋完成且给水管道*压打**合格、预埋管线畅通、预埋线盒位置准确。

为避免墙面砖铺贴大面积空鼓,要求卫生间、厨房墙面均做水泥基刚性防水,防水高度建议:参见下图(防水高度根据项目要求适当调整)再铺贴墙面砖。

2.瓷砖铺贴的工艺流程及工艺要求
规方放线 →基层防水处理 → 墙面批砂浆找平 → 弹线分格 → 贴瓷片 → 勾缝
铺贴之前对房间进行规方。若墙面基层垂直度和空间方正度不能满足铺贴要求时,需用1:2水泥砂浆找平,满足垂直度为3mm,方正度为3mm;
在墙体立面上弹出相对面完成面定位线,要求地面方正,水泥浆的厚度为10-15mm;

根据设计图纸和墙面门窗洞口及墙体尺寸,在同一墙面上弹分格线,充分考虑门窗洞口收边、碰角细部处理,不允许小于100mm的墙面砖出现;

铺贴时,严禁在卫生间墙角处打钉拉控制线,破坏防水层,损伤墙内预埋冷热水管;
铺贴前,对基层要充分湿润,冲掉浮尘,7成干即可铺贴;


陶质面砖铺贴前用清水浸泡1小时,洗净砖背面的灰尘,阴干无明水后在砖背面刮水泥灰浆10-15mm,砖边四周泥浆饱满;
瓷质砖不允许浸泡,铺贴前涂刷瓷砖专用界面剂;
墙面砖在铺装时,同一区域,面砖必须使用同一品牌、同一批次、同一色号,且无崩边、缺角、翘角等质量缺陷;

铺贴时,砖的纹理方向、颜色必须一致;

给、排水管管根瓷砖需用玻璃开孔器套割开孔,严禁打磨敲孔;


面砖铺贴自下而上,自墙、柱角开始,严格按弹线控制定位;

阳角处的细部处理,材质不同、部位不同,其处理方式也不同;

砖缝隙大小均匀,宽度严控为0.8mm;
3h后、6h前用清水、毛刷清理砖面及砖缝水泥,最后用柔软材料清理干净;


用护角条等材料对墙、柱阳角进行保护;

严禁施工完后立即对砖缝进行勾缝处理;
墙面瓷质砖铺贴时保持砖背干燥,并在砖背面满刷背覆胶界面剂,铺贴使用瓷砖专用粘结剂;

饰面砖粘贴必须牢固,湿粘法施工的饰面砖工程应无空鼓、开裂现象;
施工作业现场环境温度不低于5℃。

验收标准
