我是云栖建筑小编,每日分享乡村建房精美案例,点击上方“关注”,每日获取最新精美案例呦~

项目概括:
项目位置丨北京平谷
项目用途丨瑞源民宿
建筑尺寸丨26.00*10.10m
占地面积丨261.01㎡
建筑面积丨545.00㎡
建筑风格丨现代
结构情势丨砖混结构
——
春有百花秋有月,夏有凉风冬有雪,闲时喝茶养花,过上惬意生活。一栋乡村别墅,不管是当下打造民宿还是未来自住,都是极好的。
建筑效果图



老房子的原场地现状图
该项目位于北京平谷,主体为二层现代民宿。
场地的南侧和北侧都是邻居,东侧和西侧是村路,且东侧处于路的转角处。这对东侧的入院门的情势产生了一定的要求。
原始建筑是一间乡村民宅,自带很大的院子,好久不住长满了草, 该项目的宅基地所属兄弟两人,前期用作民宿经营,后期还要考虑到两户的居住,所以在功能配比和面积分配中都要考虑到均衡。

东侧人视图
建筑整体采用白色质感漆搭配饰面砖,部分墙体做镂空处理,通过水泥构件填充,营造半朦胧的隐约美。
西侧的斜向阳光房为主体丰富了层次,夜晚在灯光的映衬下,显得格外富有造型。

西侧入口人视图

东侧入口人视图
两个主入口针对现状情况做不同处理,logo结合背景墙临街布置,即使路过的人群也可一眼认出。东侧入口通过形体将流线转向,避免正对村路。

庭院半鸟瞰图
整个庭院规划中就将后期分隔的院墙直接考虑进去,两侧做不同功能属性的庭院空间设计,这样为后期分户提供便捷。


西侧庭院局部效果图
为了将周围的风景利用到极致, 整个南侧空间均以大面积的落地窗为主,弱化建筑边界,将室外的建筑与风景化为框景展现出来。
甚至在楼梯间上空开了天窗,将乡村独有的璀璨星空引入室内,优化视觉体验,提升采光通风效果。



东侧庭院局部效果图
东侧庭院以休闲为主,采用硬质铺装的方式展开,西侧庭院布置了浅水池,可供孩子嬉戏,不同的使用人群,不同的娱乐体验。

阳光房楼梯间
楼梯间成为一处独特的交通空间,尤其在夜晚时分,伴着灯光效果,定是吸引的点睛之笔。
生活的舒适不仅有室内空间的整洁、便利,庭院空间早就成为人们生活中不可分割的一部分,住一晚民宿, 我想庭院空间会占据2/5。
鸟瞰效果图

西南侧鸟瞰图

东南侧鸟瞰图
在这所民宿中,一种新的生活方式深入每一个细节中,从入口一步一景走入院落,远看民宿南侧的风景如画卷般展现出来。

西北侧鸟瞰图

东北侧鸟瞰图
居于此,我相信更能深刻地体会到“一日”与“四季”的意味。
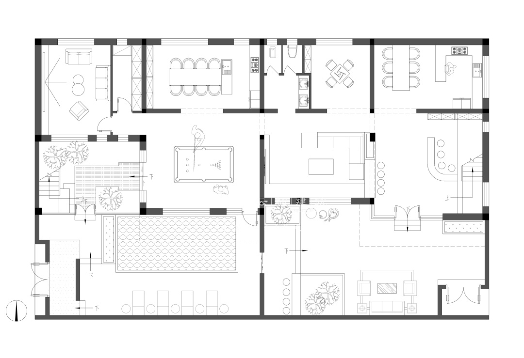
平面详图

一层平面图
乡村的美在于能够让人停下来,坐下来感受阳光、感受气象的变化。所以一层全部以共享活动空间为主,阳光房、影音室、桌游、棋牌、休闲厅应有尽有,叫上三五好友,住上两晚,体验城市不一样的感受。
东侧客厅结合折跑楼梯做挑空式设计,空间尽显气派,增加空间层次,优化室内娱乐体验和观感。

二层平面图
二层主要为居住空间,共设计了7间客房,每一间都是精品,大床房、榻榻米房,家庭情侣出游都没问题。

每个都市人都有一个田园梦 ,越来越多的人出行选择入住民宿,远离城市喧嚣,在没有世俗纷扰的地方,感知自己最真实的态势。
愿我们每个人心有所属,奋斗有标
盖房子是大事,一生只一次
我们建的不仅是房子,更是生活
云栖建筑
设计改变生活、让一切从美好出发
建筑丨室内丨景观丨规划