『东西素坤逸,南北拉差达』
Ratchada
“拉差达”在泰语中是"钱"的意思,
拉差达大道作为唯一贯穿曼谷南北向的主动脉,
巨大的人流挟带着钱流日日奔流不息。
拉差达站更是曼谷南北必经之路的重要门户。
全方位紧邻曼谷4.0计划新兴经济特区,
15分钟商务核心圈涵盖所有曼谷重大发展!




在Ratchada-Lat Phrao十字路口黄色单轨线旁,一座代表了千禧一代生活方式的英伦低层酒店式科技公寓THE ORIGIN Ratchada-Ladprao已经开盘,这是泰国知名开发商ORIGIN PROPERTY今年的重点项目,专为平均年龄不到30岁的千禧一代量身打造,为本地年轻人提供了购买第一套公寓的最佳选择。



THE ORIGIN系列今年在曼谷各地上线了六个新项目,开发商选择以刚迈入社会的千禧一代为品牌形象代言,他们必须承受比自己的年龄更大的家庭责任和社会责任,越来越多的年轻人已经把工作带出办公室,带进自己的生活。THE ORIGIN为这些年轻人提供了便捷、智能、高效的专属生活配套,让他们在压力竞争激烈的现实环境中,仍然能够收获不失品质,充满快乐的舒适生活。

在THE ORIGIN品牌下的6个新项目中,THE ORIGIN Ratchada-Ladprao是距离轨道交通最近的项目。出门就是单轨黄色线Ratchada站,过条马路就是地铁蓝色线Ladprao站,经换乘可与城中11条轨道交通全部连通,随心穿梭曼谷各地。项目所在的Ratchada-Lat Phrao区域,是曼谷年轻人通勤、生活与休闲娱乐的核心地带,也是本地中产阶级聚居之地。

这里被当地人认为是一个拥有许多机会的重心区域,6公里内连接着曼谷三大CBD【Phaholyothin-邦苏-拉玛九】,多间国际企业在周边汇聚,每天仅上班族人流就高达9万人次,并影响着所有周边地区的发展:



△ 低层精装公寓房价涨幅预测
在Paholyothin路和Ladprao交界处,可以满足曼谷顶级办公楼的潜在需求;连接Ladprao-Wanghin- Ramintra曼谷东区的豪华住宅区,拥有国际一流的商业百货;地铁4站直达邦苏总站,5站即到Asoke-Rama9城市新兴CBD地带。



千万高铁之邻
距离项目仅4站地的曼谷邦苏总站,被称作BangSue CBD4.0,是中泰高铁及泛亚铁路的最重要地标,多国线路在此转运,7种交通线路在这里交汇,集高铁、航空、轨道交通、长途客运、换乘枢纽、商务办公零售、星级酒店住宅和大型绿地于一体。



曼谷北叻抛
THE ORIGIN Ratchada-Ladprao坐镇于大名鼎鼎的曼谷北叻抛,“北叻抛”商圈是泰国本地人很喜欢去的一个以Lat Phrao商圈为中心,幅员周边数家大型商场的无比繁荣的“逛吃聚集地”。泰国连锁百货最多的Central集团的Central Plaza Ladprao百货、五星级酒店Centara Grand、大型超市TESCO LOTUS、购物天堂Union Mall,还有无数美食酷店,都聚集在此!


呼吸最大城中绿肺
从THE ORIGIN Ratchada-Ladprao出发,地铁十分钟就能到达恰图恰周末集市和曼谷最大的城市绿肺——恰图恰公园、诗丽吉皇后公园、国家铁路公园。这三座绿意盎然、环境优美的公园与曼谷最火的热门集市相连在一起,共同打造了THE ORIGIN无与伦比的优质生活休闲环境。


千禧一代本地生活
在恰图恰公园站换乘轻轨,直通Saphan Kwai-Ari-Sanampao北曼谷经典时尚娱乐街区。从项目搭地铁往南,即刻谱写光辉区生活指南,通向拉差达火车夜市方向,感受拉玛九新兴CBD的曼谷华尔街的金融业态与千禧一代通勤日常。


项目提供完美的居家管理服务:例如24小时工程维修、泳池PH值定期检测、环境消毒维护、租赁、转手、软装私家服务等,结合ORIGIN APP家庭自动化系统,为住户打造一尘不染的理想居住环境,和有温度的社区生活。针对海外置业的业主来说,基本解决一切后顾之忧!




开发商

ORIGIN PROPERTY成立于2009年,并于2015年在泰国证交所上市,是泰国资产排名前五名的开发商。ORIGIN专注于开发靠近轻轨,高速公路和大型购物中心附近的楼盘。ORIGIN的项目被业界称为“白领高级公寓”,即中产阶级支付的起的中高端实用性公寓,因此受到泰国本地白领的追捧。


ORIGIN可以说是行业中比较时尚的开发商了,它们所有建成的项目都拥有独一无二的设计,近乎完美的空间及功能布局和卓越的售后服务,让客户们觉得物超所值。ORIGIN的核心价值是——以合理的价格分配最佳产品价值,满足客户的需求!


项目资料
项目名称:
THE ORIGIN Ratchada-Ladprao
开发商:
ORIGIN PROPERTY
占地面积:
2928平方米
地契类别:
永久产权
项目地址:
Soi Ladprao 23,距离地铁黄线MRT Ratchada站25米
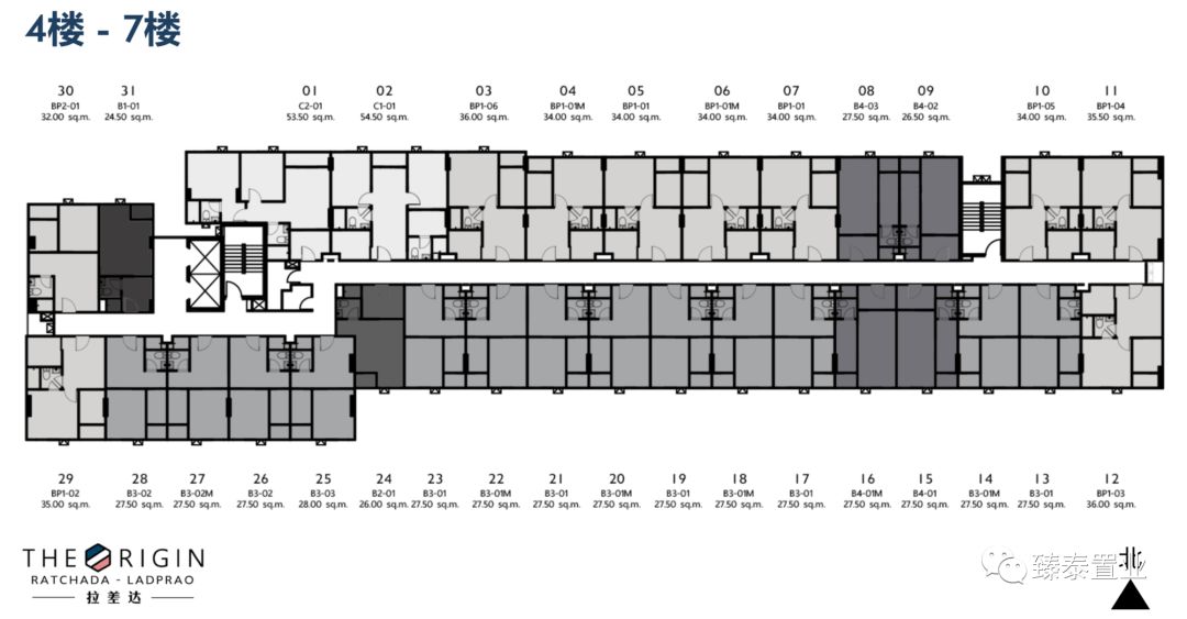
总楼层及户数:
1栋,8层,208户
主力户型:
一房:24.5-33㎡
1+1户型:32-36㎡
两房:50-54.5㎡
价格:
85万人民币起
竣工时间:
2021年3月
公共设施:

1楼:欧式英伦迎宾大堂、共享服务空间、小区花园、邮箱&智能储藏柜、共享会议室

2楼:休息室、健身房、无边泳池


3楼:图书馆、休闲互动、共享工作空间 (含个人专属创作空间及大型会议室)

8楼:空中花园、瑜伽室

免费停车位:
61%的免费停车位配比,带自动泊车系统

文章内容最终解释权归公众号主体所有
房型介绍

































周边配套




下单事宜

付款方式:
预定金:35000人民币或5000美金
合约金:交付预定金后14日内支付合约价的15%
首付款:在支付合约金后1个月内支付合约价的10%,共计房价25%
尾款:不超过项目预计完工日期之90天内,支付合约价的75%
预计完工日期:2021年3月
专属置业顾问:
联系方式:130-11157118
泰国专线:06-38764501